
| 学府首座87平米两室两厅现代简约装修案例 |
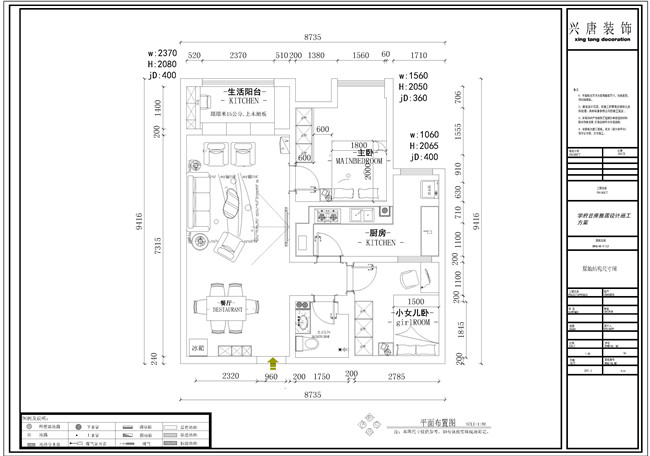
项目地址 : 学府首座 面积: 87平米 设计风格:现代简约 项目户型:两室两厅一卫一厨 项目设计师:阮开萍 主要材料 : 全抛釉瓷砖、、石膏板、乳胶漆、石膏倒模等。 我的业主朋友王姐是渭南的,通过网络了解到我们之后,直接来到公司交下定金才做方案的,是一个性格直爽开朗的女主人,年龄三十多岁有一个四岁可爱的女儿,女主人喜欢现代简约风格 ,简洁和实用是现代简约风格的基本特点。简约风格不仅注重居室的实用性,而且还体现出了社会生活的精致与个性,符合现代人的生活品味。 在接受这个项目后将业主的生活习惯融入到空间的功能划分之中,风格从简单到简约、从整体到局部都给人一丝不苟的印象。一方面保留了材质、色彩的大致风格,同时又摒弃了过于复杂的肌理和装饰,简化了线条,表现出一种纯粹的美感。 在色彩软装方面,采用黑色与白色的搭配,色调的冲撞使整个空间处于平衡状态,简洁实用且温馨舒适;电视墙白色的石膏倒模干净整洁和整体融为一体使得空间更加开阔。
|
相关阅读 |