
| 陕西师范大学长安校区160㎡五室两厅欧式古典装修案例 |
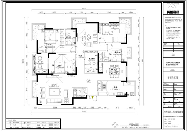
项目地址 : 陕西师范大学长安校区 建筑面积: 160平米 设计风格:欧式古典 项目户型:五室两厅两卫一厨 项目设计师:阮开萍 主要材料 : 仿古砖、壁布、石膏板、pu线、罗马柱等 我的业主朋友是一对老师,年龄大概40多岁,见面是在他们的毛坯房里,见面第一感觉女主人长的很漂亮很年轻,再继续沟通感觉热情和蔼,男主人话语不多随时面带微笑。整个沟通下来很愉快,女主人非常喜欢欧式古典风格,喜欢欧式的淡雅高贵欧式的文化古典韵味。 在本项目中设计的是喜欢的欧式风格,从整体到局部、从空间到室内陈设塑造,精雕细琢,给人一丝不苟的印象。一方面保留了材质、色彩的大致感受,可以领悟到欧洲传统的历史痕迹与深厚的文化底蕴,同时又摒弃了过于复杂的肌理和装饰,在欧式风格中我们所需要做的就是减少多余的装饰,保持高品质的品味。注重空间的合理规划,也注重典雅高贵的体现。带着一丝小资情调,让生活充满了情趣感。保留它的优雅高贵更能显现出欧式风格的魅力,取长补短让家不仅仅是港湾,还是一个充满了艺术感的地方, 公共区域以会客为主,所以墙面装饰以壁布为主,彰显主人大气和热情好客的情怀。
|
相关阅读 |