
| 普华浅水湾145平米四室两厅两卫欧式装修效果图 |
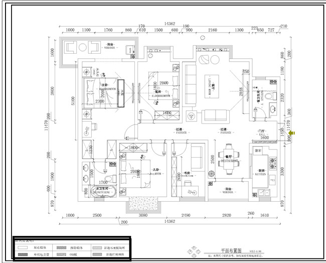
项目地址 : 普华浅水湾 面积: 145平米 设计风格:欧式 项目户型:四室两厅两卫一厨 项目设计:阮开萍设计 主要材料 : 全抛釉瓷砖、茶镜、石膏板、壁纸、石膏线等 本案例坐落于 浐灞灞桥区公园南路9号(灞河公园西邻),客户干部身份50岁左右,通过量房见面沟通,定位欧式风格,结合主人个人喜好,在审美价值上建立起沟通的桥梁,让单一的权力、财富的显性诉求,过渡到生活中对伦理、温暖的需要,并于此达到感动人心和产生共鸣。 客厅和餐厅的设计,都只为营造出一种舒适、大方、和谐的居家氛围。设计简约大气、线条洗练,淡色系墙面、天花板、沙发与深色系的茶几、沙发后背墙纸相得益彰,赋予空间平衡之美。追求简单、明快、浪漫和单纯的欧式风格,将让你的家园更加单纯、每天快乐浪漫。 客餐厅通过地面,顶面区域划分功能区分,呈现出欧式风格的奢华与大气。在布局上采用对称,细节处理上大量运用石膏雕花,石膏线条处理,同时辅以雕刻精细的家具,电视墙仿瓷砖的石材铺贴不仅降低了使用成本,也保留了欧式风格特有的韵味,整体空间均已米白色为主.
|
相关阅读 |