
| 缤纷南郡148平米四室两厅两卫中式装修案例 |
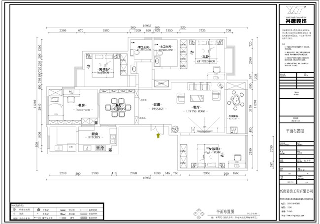
项目地址:缤纷南郡 面积: 148平米 设计风格:中式 项目户型:四室两厅两卫一厨 项目设计:阮开萍设计 主要材料 : 全抛釉瓷砖、壁画、石膏板、木饰面、实木花格等 本案业主是一位30-40岁之间的夫妇,有一男一女两个小孩,这套房子是在这个小区的第二套,男主人喜欢中式,基于房屋的基本情况,结合两人的喜好,设计师经过与业主深入沟通,三者达成一致,做简中设计。预算是设计中需要考虑的一个重要前提,经过设计师整体规划设计,与客户间紧密沟通,超出了客户预期的效果。,简约中式风格。设计中运用中式代元素花格,及花鸟壁纸做电视墙,表达空间的古朴,但不失雅致!电视墙的隐形门实木定做,与电视墙融为整体,有素雅的质地,随性自如的大气。
|
相关阅读 |