罗马景福城128平米三室两厅两卫简约美式装修效果图
查看:2927  发稿日期:2017-04-19 16:35:34
 上一篇:普华浅水湾145平米四室两厅欧式装修案例
 下一篇:金地褐石公馆130平米四室两厅中式装修效果图

项目地址: 罗马景福城

面积: 128平米

设计风格:简约美式

项目户型:三室两厅两卫一厨

项目设计:阮开萍设计

主要材料 :  仿古瓷砖、乳胶漆、石膏板、石膏线等

本案业主是一对即将结婚的未婚夫妇,在整个装修设计沟通中是男业主的妈妈冯姐与我全程沟通的。毕竟是年轻人对整个装修经验较少,当然这里面也有年轻人的一些想法参与的。

经过沟通详谈,确定风格为简约美式风格。在整个设计过程中简约、轻快是本案设计的核心理念。美式简约风格不需要太多的花样和繁杂的色系,而是主张简约,强调一种心神的回归。摒弃一切琐碎和奢华。去掉零碎的空间划分,使整个空间看起来却又简而不凡。淡黄系墙面、白色天花板、浅蓝色沙发与深色系的茶几、电视墙造型墙面相得益彰,赋予空间平衡之美。 在快节奏的忙碌之后,回归属于自己的一方天地,平稳且轻松。

罗马景福城128平米三室两厅两卫简约美式电视墙装修效果图

罗马景福城128平米简约美式客厅装修效果图

罗马景福城128平米简约美式卧室装修效果图

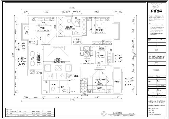
罗马景福城128平米三室两厅两卫平米布置图



打印本页 || 关闭窗口

文章标签: 罗马景福城装修

相关阅读

>> 曲江龙邸三居室美式风格装修案例 >> 白桦林居四居室简美风格装修案例
>> 暖山西安三居室美式轻奢风格装修案例 >> 凤城庭院三居室美式风格装修案例
>> 白桦林间简美风格装修案例 >> 时丰中央公园简美风格装修案例
>> 曲江翠竹苑180平米乡村美式风格装修案例 >> 曲江金水湾160平米美式风格装修案例
>> 达成馨苑美式风格装修案例 >> 金辉世界城美式风格装修效果图
>> 中建开元城100平米两室两厅小美式风格装修效果图 >> 国会山小区89m2二居美式装修效果图
>> 金域湾畔135m2三居简美风格装修效果图 >> 御锦城4期125平米三室两厅两卫美式风格装修效果图
>> 曲江香都东岸138平米三室两厅两卫美式装修效果图 >> 宏府.麒麟山95平米三室两厅简欧风格装修效果图
>> 福邸铭门130平米北欧风格装修案例 >> 东方米兰国际城124平米三室两厅两卫现代简约装修效果图
>> 紫薇田园都市136平米四室两厅两卫古典美式装修效果图 >> 灞业大境136平米三室两厅两卫美式装修效果图

预约装修

    公司/联系Contact Us
    我公司成立于2011年,是一家专业进行网络营销的装修公司,网络接单省去了很多中间环节,降低公司运营成本,更大化让利于西安的业主们,公司专业从...

     

    【公司名称】西安兴唐装饰工程有限公司 【微信号】xingtangzhuangshi
    【联系方式】029-89192830/13909256332
    【联系QQ】1925053230
    【公司地址】西安市太白南路216号嘉天国际A座1807
    公司地图Map
    © 2016 Baidu
    ?????Message
陕ICP备15009267号-2
QQ在线客服浮动代码
  点击这里给我发消息
  点击这里给我发消息
  点击这里给我发消息
  点击这里给我发消息